CHARMING TOP FLOOR DUPLEX
Ref: 53
Centre
2 rooms - 33.94 m²- Apartment
Highlights
  • Top floor
  • Bright
  • Mountain view
Price:
650 000€*
Seller fees

Our advisers are here to help!
Let’s find the right property for you:
+33 (0) 6 80 61 18 21

Ref: 53

CHARMING TOP FLOOR DUPLEX

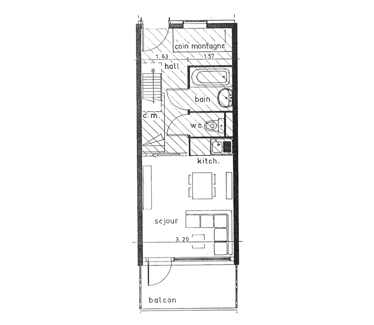
Just steps from the heart of the resort, discover this charming 34 sqm apartment. Located on the top floor, it boasts spacious rooms and high ceilings. The entrance hall features bunk beds for children, a shower room, and a separate WC. The bright living room/kitchen opens to the southeast, offering magnificent views of the Solaise mountain range. Upstairs, a pleasant mezzanine provides a double bed and ample storage. A cozy and ideal base for your next mountain getaway! Condominiums of 93 units. Annual expenses : 2800 euros.

Features

Construction year:
1987
Number of units
93
Type of heating
Individual
Heating mode
Electric
Lift
Yes
Services charges
2800 €/year
Property tax
1304 €/year
Council tax
1135 €/year
Energy consumption

Energy-efficient property

≤ 50 A
51 to 90 B
91 to 150 C
151 to 230 D
231 to 330 E
331 to 450 F
F
> 450 G

Energy-inefficient property

Unit of measurement expressed in kWhPE/m²/year

Greenhouse gas emissions

Low GHG emissions

≤ 5 A
6 to 10 B
11 to 20 C
C
21 to 35 D
36 to 55 E
56 to 80 F
> 80 G

High GHG emissions

Unit of measurement in kgeqCO2/m²/year

Price
650000
Deposit
Interest rate
2%
Term
20 Years
Monthly repayments
CHARMING TOP FLOOR DUPLEX
Ref: 53
Centre
2 rooms - 33.94 m²- Apartment
Highlights
  • Top floor
  • Bright
  • Mountain view
Price:
650 000€*
Seller fees

Our advisers are here to help!
Let’s find the right property for you:
+33 (0) 6 80 61 18 21