BEAUTIFUL DUPLEX PENTHOUSE
Ref: 46
Bas de station
5 rooms - Apartment
Highlights
  • New build
  • Top floor
  • High standard
Price:
2 200 000€*
Seller fees

Our advisers are here to help!
Let’s find the right property for you:
+33 (0) 6 80 61 18 21

Ref: 46

BEAUTIFUL DUPLEX PENTHOUSE

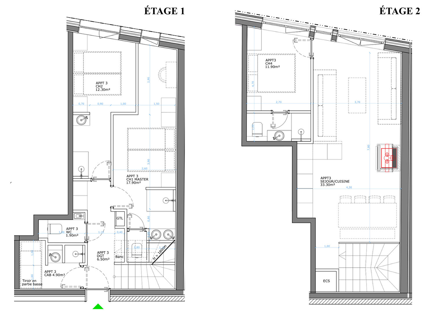
As part of the Illaz residence extension project in Val d'Isère, this 88.70 sqm apartment charms with its duplex layout and refined atmosphere, designed to comfortably accommodate families and mountain lovers. On the first floor, there are three en-suite bedrooms, including a children's bedroom that will delight the youngest guests. On the upper floor, there is an additional suite and the living room, the real centrepiece of the apartment, which is built around a fireplace, creating a warm and friendly atmosphere. The generous volumes and openness to the outside give this level a unique charm, where contemporary elegance blends with the authentic spirit of the mountains. A privileged location in the heart of Val d'Isère, offering an ideal living environment to fully enjoy the resort. Delivery in 2027, reduced notary fees and VAT credit possible in case of rental. Condominiums of 54 units (No proceedings in progress).

Features

Construction year:
1950
Number of units
54
Lift
Yes
Price
2200000
Deposit
0
Interest rate
2%
Term
20 Years
Monthly repayments
BEAUTIFUL DUPLEX PENTHOUSE
Ref: 46
Bas de station
5 rooms - Apartment
Highlights
  • New build
  • Top floor
  • High standard
Price:
2 200 000€*
Seller fees

Our advisers are here to help!
Let’s find the right property for you:
+33 (0) 6 80 61 18 21