SPACIOUS FLAT WITH MULTIPLE LARGE WINDOWS
Ref: 150
BAS DE STATION
5 rooms - Apartment
Highlights
  • Triple exposure
  • Peaceful surroundings
  • High ceiling
Price:
5 600 000€*
Seller fees

Our advisers are here to help!
Let’s find the right property for you:
+33 (0) 6 80 61 18 21

Ref: 150

SPACIOUS FLAT WITH MULTIPLE LARGE WINDOWS

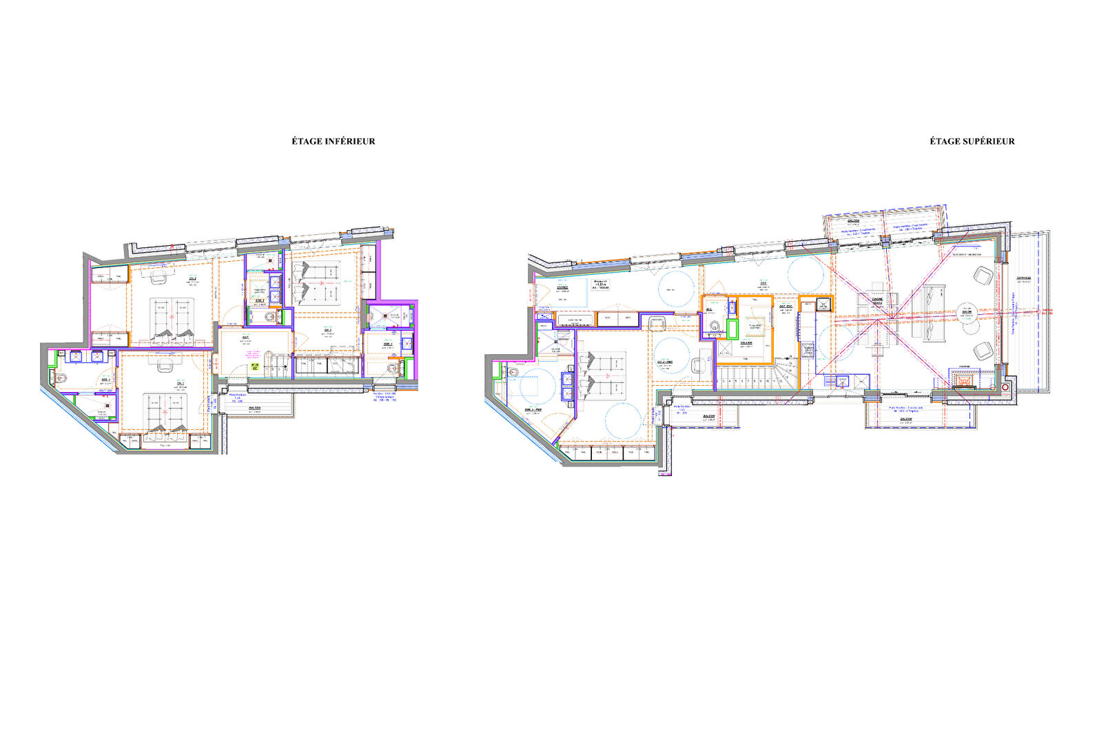
Discover this magnificent family duplex, nestled on the 2nd and 3rd floors of the new LE GOUPIL residence, combining elegance with contemporary comfort. As soon as you enter, a spacious hall with storage space welcomes you and sets the tone. On this level, you will find a superb 26sqm suite with an office area, a shower room with WC and plenty of built-in storage, as well as a large, practical pantry. The living room, the true centrepiece of the home, captivates with its fireplace, large windows on three sides and an impressive cathedral ceiling, which gives it a unique character and exceptional natural light. On the lower floor, three spacious en-suite bedrooms offer each resident a private and comfortable space. This intimate residence, comprising just 5 apartments, also features a communal wellness area including an indoor swimming pool, a sauna, a hammam and a relaxation zone, for moments of exclusive relaxation. This rare property is sold with 3 garages, a ski locker and a cellar. It also offers the possibility of VAT recovery if operated as a short-let property, as well as reduced notary fees. Condominiums of 5 units.

Features

Construction year:
2028
Number of units
5
Lift
Yes
Price
5600000
Deposit
Interest rate
2%
Term
20 Years
Monthly repayments
SPACIOUS FLAT WITH MULTIPLE LARGE WINDOWS
Ref: 150
BAS DE STATION
5 rooms - Apartment
Highlights
  • Triple exposure
  • Peaceful surroundings
  • High ceiling
Price:
5 600 000€*
Seller fees

Our advisers are here to help!
Let’s find the right property for you:
+33 (0) 6 80 61 18 21