NEW BUILD APARTMENT WITH LARGE TERRASSE
Ref: 76
CENTRE
4 rooms - Apartment
Highlights
  • Large terrace
  • New build
  • South facing
Price:
2 367 162€*
Seller fees

Our advisers are here to help!
Let’s find the right property for you:
+33 (0) 6 80 61 18 21

Ref: 76

NEW BUILD APARTMENT WITH LARGE TERRASSE

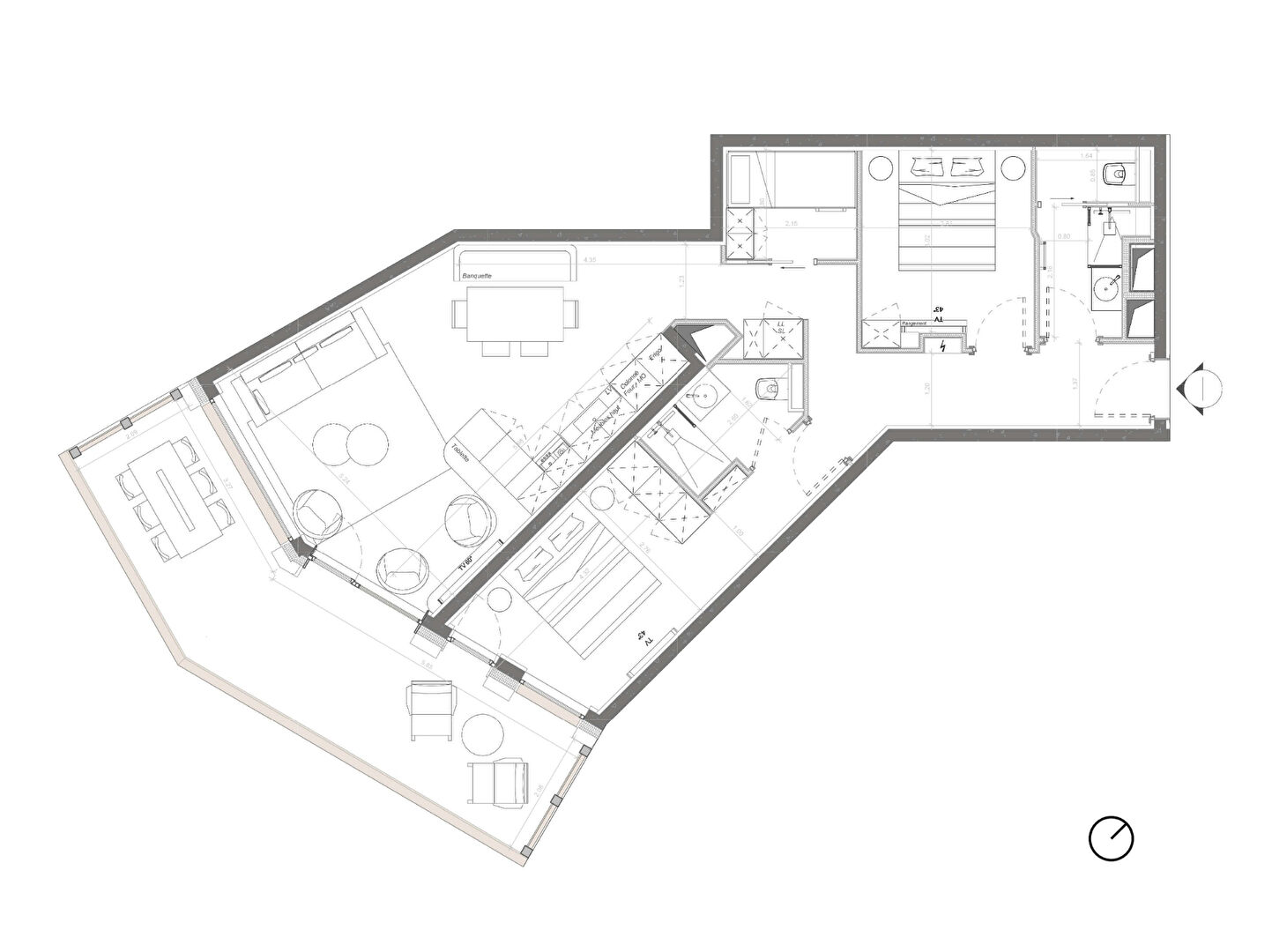
This flat is the ideal place to enjoy the mountains to the full in all seasons. With a surface area of 74.84 sqm, it has been designed to comfortably accommodate family and guests. It comprises two double bedrooms and a children's bedroom, complemented by two separate shower rooms. Its bright living space opens onto a remarkable south-facing terrace of over 20 m². The property is part of a private residence offering high-quality amenities, including a wellness area with a fitness room, sauna and massage room. It is suitable both as a holiday home and as a rental investment, with the possibility of VAT recovery as part of a para-hotel operation. The flat is sold with a ski locker, storage space and a covered parking space. Condominiums of 16 units (No proceedings in progress).

Features

Construction year:
2028
Number of units
16
Type of heating
Communal heating
Heating mode
Heat pump
Lift
Yes
Price
2367162
Deposit
0
Interest rate
2%
Term
20 Years
Monthly repayments
NEW BUILD APARTMENT WITH LARGE TERRASSE
Ref: 76
CENTRE
4 rooms - Apartment
Highlights
  • Large terrace
  • New build
  • South facing
Price:
2 367 162€*
Seller fees

Our advisers are here to help!
Let’s find the right property for you:
+33 (0) 6 80 61 18 21